ТЕПЛОВОЙ НАСОС «ВОЗДУХ-ВОДА» 
ВСТРОЕННЫЙ ТЕПЛООБМЕННИК «ФРЕОН-ВОДА»
- Несложный монтаж, так как не требуется сборка контура хладагента
- Обязательным компонентом системы является контроллер PAC-IF062B-E.
- Вода в системе должна быть чистой, а величина pH — составлять 6,5−8,0. Следующие значения являются максимальными: кальций — 100 мг/л, хлор — 100 мг/л, железо/ марганец — 0,5 мг/л. В инструкции по установке изложены дополнительные рекомендации относительно водяного контура.
- Обязательно примите меры по предотвращению замерзания теплоносителя: изоляция водяного трубопровода, резервный циркуляционный насос, использование необходимой концентрации этиленгликоля вместо обычной воды.
- В наружном блоке нет циркуляционного насоса. Он приобретается самостоятельно у других производителей.
Технические характеристики наружных блоков Mitsubishi Electric PUHZ-W50VHA , PUHZ-W85VHA , PUHZ-HW112YHA , PUHZ-HW140VHA и PUHZ-HW140YHA :

Встроенный теплообменник наружных блоков Mitsubishi Electric PUHZ-W50VHA , PUHZ-W85VHA , PUHZ-HW112YHA , PUHZ-HW140VHA и PUHZ-HW140YHA :

Размеры (габбариты) наружных блоков Mitsubishi Electric PUHZ-W50VHA , PUHZ-W85VHA :

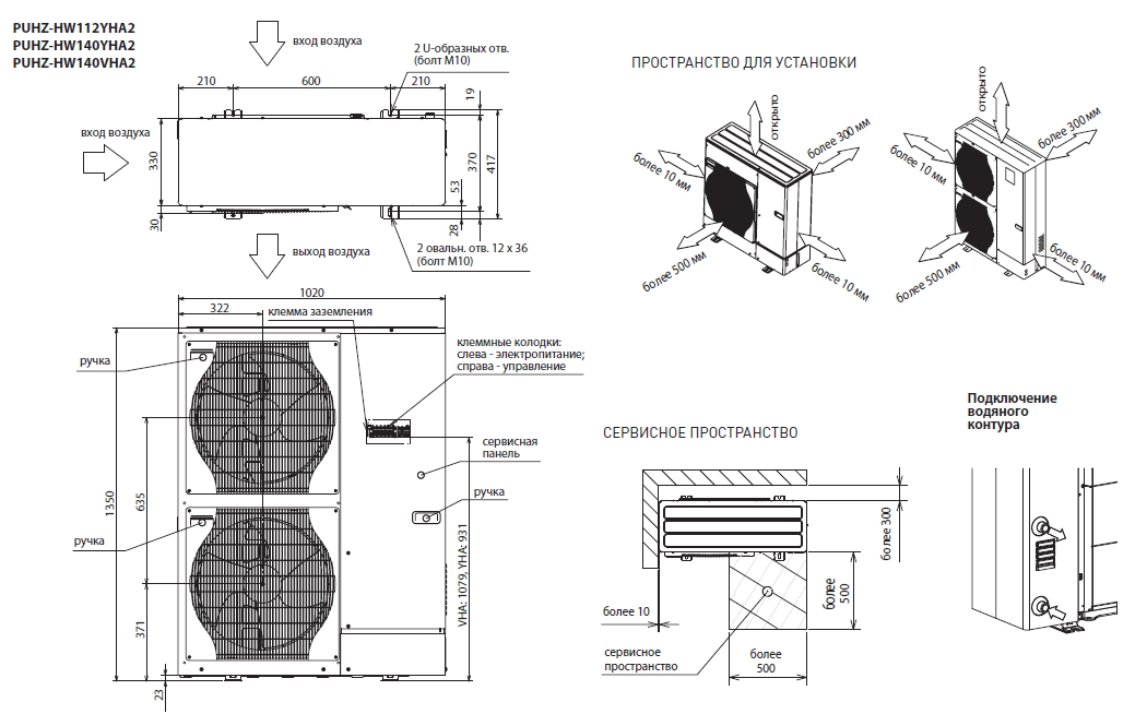
Размеры (габбариты) наружных блоков Mitsubishi Electric PUHZ-HW112YHA , PUHZ-HW140VHA и PUHZ-HW140YHA :

|
Серия
|
ZUBADAN |
|
Площадь, м2
|
100 |
|
Режимы работы
|
охлаждение и обогрев |
|
Мощность охлаждения (кВт)
|
10 |
|
Мощность обогрева (кВт)
|
11.2 |
|
Потребляемая мощность в режиме охлаждения, Вт
|
3140 |
|
Потребляемая мощность в режиме обогрева, Вт
|
2800 |
|
Диапазон наружных температур, охл. (°С)
|
-25 ... +35 |
|
Хладагент
|
R410A |
|
Уровень шума (внешний блок), дБ(А)
|
53 |
|
Вес внешнего блока (кг)
|
148 |
|
Размеры внешнего блока мм
|
1350x1020x360 |
|
Инверторный компрессор
|
Инвертор |
|
Диапазон наружных температур, обогр. (°С)
|
-5 ... +46 |
|
Гарантия
|
3 года |
Для покупки товара в нашем интернет-магазине выберите понравившийся товар и добавьте его в корзину. Далее перейдите в Корзину и нажмите на «Оформить заказ» или «Быстрый заказ».
Когда оформляете быстрый заказ, напишите ФИО, телефон и e-mail. Вам перезвонит менеджер и уточнит условия заказа. По результатам разговора вам придет подтверждение оформления товара на почту или через СМС. Теперь останется только ждать доставки и радоваться новой покупке.
Оформление заказа в стандартном режиме выглядит следующим образом. Заполняете полностью форму по последовательным этапам: адрес, способ доставки, оплаты, данные о себе. Советуем в комментарии к заказу написать информацию, которая поможет курьеру вас найти. Нажмите кнопку «Оформить заказ».
Оплачивайте покупки удобным способом. В интернет-магазине доступно 3 варианта оплаты:
- Наличные при самовывозе или доставке курьером. Специалист свяжется с вами в день доставки, чтобы уточнить время и заранее подготовить сдачу с любой купюры. Вы подписываете товаросопроводительные документы, вносите денежные средства, получаете товар и чек.
- Безналичный расчет при самовывозе или оформлении в интернет-магазине: карты Visa и MasterCard. Чтобы оплатить покупку, система перенаправит вас на сервер системы ASSIST. Здесь нужно ввести номер карты, срок действия и имя держателя.
- Электронные системы при онлайн-заказе: PayPal, WebMoney и Яндекс.Деньги. Для совершения покупки система перенаправит вас на страницу платежного сервиса. Здесь необходимо заполнить форму по инструкции.
Экономьте время на получении заказа. В интернет-магазине доступно 4 варианта доставки:
- Курьерская доставка работает с 9.00 до 19.00. Когда товар поступит на склад, курьерская служба свяжется для уточнения деталей. Специалист предложит выбрать удобное время доставки и уточнит адрес. Осмотрите упаковку на целостность и соответствие указанной комплектации.
- Самовывоз из магазина. Список торговых точек для выбора появится в корзине. Когда заказ поступит на склад, вам придет уведомление. Для получения заказа обратитесь к сотруднику в кассовой зоне и назовите номер.
- Постамат. Когда заказ поступит на точку, на ваш телефон или e-mail придет уникальный код. Заказ нужно оплатить в терминале постамата. Срок хранения — 3 дня.
- Почтовая доставка через почту России. Когда заказ придет в отделение, на ваш адрес придет извещение о посылке. Перед оплатой вы можете оценить состояние коробки: вес, целостность. Вскрывать коробку самостоятельно вы можете только после оплаты заказа. Один заказ может содержать не больше 10 позиций и его стоимость не должна превышать 100 000 р.
Уважаемые покупатели актуальные цены и наличие товара необходимо уточнять у менеджеров в связи с нестабильной экономической ситуацией.
