ТЕПЛОВОЙ НАСОС «ВОЗДУХ-ВОДА» 
ВСТРОЕННЫЙ ТЕПЛООБМЕННИК «ФРЕОН-ВОДА»
- Несложный монтаж, так как не требуется сборка контура хладагента
- Обязательным компонентом системы является контроллер PAC-IF062B-E.
- Вода в системе должна быть чистой, а величина pH — составлять 6,5−8,0. Следующие значения являются максимальными: кальций — 100 мг/л, хлор — 100 мг/л, железо/ марганец — 0,5 мг/л. В инструкции по установке изложены дополнительные рекомендации относительно водяного контура.
- Обязательно примите меры по предотвращению замерзания теплоносителя: изоляция водяного трубопровода, резервный циркуляционный насос, использование необходимой концентрации этиленгликоля вместо обычной воды.
- В наружном блоке нет циркуляционного насоса. Он приобретается самостоятельно у других производителей.
Технические характеристики наружных блоков Mitsubishi Electric PUHZ-SW40VHA , PUHZ-SW50VHA , PUHZ-SW75VHA , PUHZ-SW100VHA , PUHZ-SW100YHA , PUHZ-SW120VHA , PUHZ-SW120YHA :

Встроенный теплообменник наружных блоков Mitsubishi Electric PUHZ-SW40VHA , PUHZ-SW50VHA , PUHZ-SW75VHA , PUHZ-SW100VHA , PUHZ-SW100YHA , PUHZ-SW120VHA , PUHZ-SW120YHA :

Примечания:
1. Производительность системы зависит от длины фреонопроводов, а также от теплоизоляции трубопроводов и пластинчатого теплообменника.
2. Допускается использовать пластинчатые теплообменники других производителей. В этом случае марка и параметры теплообменника
определяются самостоятельно.
3. К наружным блокам POWER Inverter PUHZ-ZRP200YKA и PUHZ-ZRP250YKA подключаются параллельно 2 пластинчатых теплообменника ACH70-40
или ACH-70X-50H (G67,H34,H21)B.
Размеры (габбариты) наружных блоков Mitsubishi Electric PUHZ-SW40VHA , PUHZ-SW50VHA

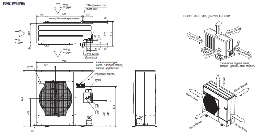
Размеры (габбариты) наружного блока Mitsubishi Electric PUHZ-SW75VHA :

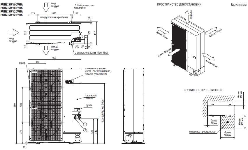
Размеры (габбариты) наружных блоков Mitsubishi Electric PUHZ-SW100VHA , PUHZ-SW100YHA , PUHZ-SW120VHA , PUHZ-SW120YHA :

Регулирование количества хладагента (R410A)
Наружный прибор заправлен достаточным
количеством хладагента при длине магистрали
хладагента до 10 м. Если длина трубы превыша-
ет 10 м, то необходима дополнительная
заправка хладагента (R410A).
ОПЦИИ (АКСЕССУАРЫ):

|
Серия
|
Power Inverter |
|
Площадь, м2
|
125 |
|
Режимы работы
|
охлаждение и обогрев |
|
Мощность охлаждения (кВт)
|
12.5 |
|
Мощность обогрева (кВт)
|
16 |
|
Потребляемая мощность в режиме охлаждения, Вт
|
3900 |
|
Потребляемая мощность в режиме обогрева, Вт
|
5380 |
|
Диапазон наружных температур, охл. (°С)
|
-20 ... +35 |
|
Хладагент
|
R410A |
|
Уровень шума (внешний блок), дБ(А)
|
62 |
|
Вес внешнего блока (кг)
|
136 |
|
Размеры внешнего блока мм
|
1350х950х360 |
|
Инверторный компрессор
|
Инвертор |
|
Диапазон наружных температур, обогр. (°С)
|
-15 ... +21 |
|
Гарантия
|
3 года |
Для покупки товара в нашем интернет-магазине выберите понравившийся товар и добавьте его в корзину. Далее перейдите в Корзину и нажмите на «Оформить заказ» или «Быстрый заказ».
Когда оформляете быстрый заказ, напишите ФИО, телефон и e-mail. Вам перезвонит менеджер и уточнит условия заказа. По результатам разговора вам придет подтверждение оформления товара на почту или через СМС. Теперь останется только ждать доставки и радоваться новой покупке.
Оформление заказа в стандартном режиме выглядит следующим образом. Заполняете полностью форму по последовательным этапам: адрес, способ доставки, оплаты, данные о себе. Советуем в комментарии к заказу написать информацию, которая поможет курьеру вас найти. Нажмите кнопку «Оформить заказ».
Оплачивайте покупки удобным способом. В интернет-магазине доступно 3 варианта оплаты:
- Наличные при самовывозе или доставке курьером. Специалист свяжется с вами в день доставки, чтобы уточнить время и заранее подготовить сдачу с любой купюры. Вы подписываете товаросопроводительные документы, вносите денежные средства, получаете товар и чек.
- Безналичный расчет при самовывозе или оформлении в интернет-магазине: карты Visa и MasterCard. Чтобы оплатить покупку, система перенаправит вас на сервер системы ASSIST. Здесь нужно ввести номер карты, срок действия и имя держателя.
- Электронные системы при онлайн-заказе: PayPal, WebMoney и Яндекс.Деньги. Для совершения покупки система перенаправит вас на страницу платежного сервиса. Здесь необходимо заполнить форму по инструкции.
Экономьте время на получении заказа. В интернет-магазине доступно 4 варианта доставки:
- Курьерская доставка работает с 9.00 до 19.00. Когда товар поступит на склад, курьерская служба свяжется для уточнения деталей. Специалист предложит выбрать удобное время доставки и уточнит адрес. Осмотрите упаковку на целостность и соответствие указанной комплектации.
- Самовывоз из магазина. Список торговых точек для выбора появится в корзине. Когда заказ поступит на склад, вам придет уведомление. Для получения заказа обратитесь к сотруднику в кассовой зоне и назовите номер.
- Постамат. Когда заказ поступит на точку, на ваш телефон или e-mail придет уникальный код. Заказ нужно оплатить в терминале постамата. Срок хранения — 3 дня.
- Почтовая доставка через почту России. Когда заказ придет в отделение, на ваш адрес придет извещение о посылке. Перед оплатой вы можете оценить состояние коробки: вес, целостность. Вскрывать коробку самостоятельно вы можете только после оплаты заказа. Один заказ может содержать не больше 10 позиций и его стоимость не должна превышать 100 000 р.
Уважаемые покупатели актуальные цены и наличие товара необходимо уточнять у менеджеров в связи с нестабильной экономической ситуацией.
